FOR SALE | VALUE-ADD SERVICE COMMERCIAL / INDUSTRIAL
Exceptional opportunity to acquire a substantially renovated service commercial / industrial asset located in the established Cree Road corridor of Sherwood Park. The property has undergone extensive capital improvements totaling in excess of $500,000 over the past three years, resulting in high-end interior and exterior finishes rarely found in this submarket.
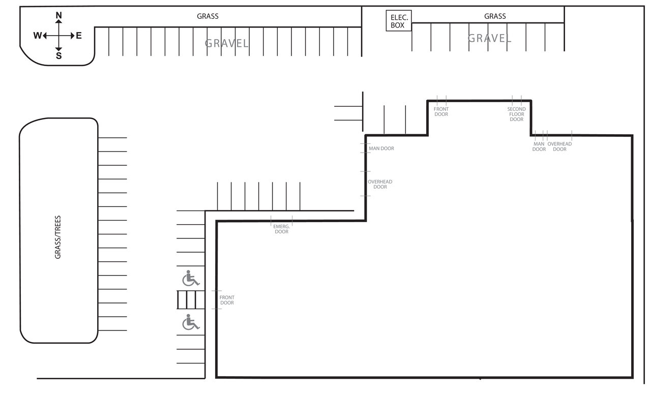
The building features three (3) overhead grade-level loading doors, 3-phase power, and 12+ washrooms, allowing for flexible multi-tenant or owner-user configurations. The site sits on approximately 1.8 acres with abundant on-site parking, supporting both industrial and service commercial users.
Currently partially leased to two long-term tenants who are willing to remain, providing immediate stabilized income, with additional rentable area available for further lease-up and upside. This creates an attractive value-add investment or owner-user with income opportunity.
Zoned C5 – Service Commercial, the property accommodates a wide range of permitted uses including light industrial, warehousing, contractor services, manufacturing, and showroom applications.
Highlights include:
Over $500,000 in recent renovations
High-end finishes throughout
3 overhead doors
3-phase power
12+ washrooms
1.8-acre site
Excellent parking ratio
Two established long-term tenants in place
Additional space available for lease-up
Prime Sherwood Park location with strong access and visibility
This is a rare turnkey industrial/service commercial offering with strong fundamentals, in-place income, and future upside. (73288397)
2 of 10 shares taken8 available shares
Interest is first-come, subject to approval and documentation.